Bühl:
Sanierungsbedürftige 3-Zimmer-Wohnung mit Balkon in absolut ruhiger Lage zu verkaufen
Objekt-Nr.: imz720

Aussenansicht markiert

Treppenhaus

Diele

Wohn/Esszimmer

Balkon

Schlafzimmer 1

Schlafzimmer

Kueche

Kueche Schrank

WC separat

Badezimmer

Badezimmer/Dusche

Kellerraum

Hauswirtschaftsraum

Wäscheraum

Fahrradraum

Wäscheraum

Auffahrt Tiefgarage

Tiefgaragenstellplatz

Tiefgaragenauffahrt

Tiefgarage

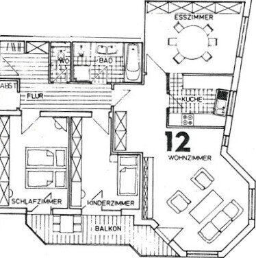
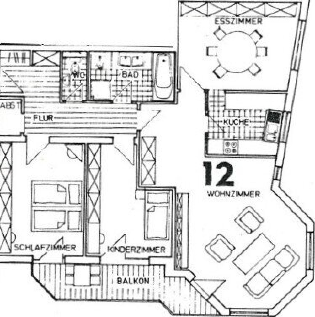
Grundriss Wohnung 12






















Preis:
275.000 €
Wohnfläche ca.:
92,24 m²
Zimmeranzahl:
3
Attraktive, großzügig geschnittene 3-Zimmer-Wohnung mit Balkon und Tiefgaragenstellplatz in ruhiger Sackgassenlage von Bühl. Die Wohnung ist sanierungsbedürftig und bietet vielseitige Gestaltungsmöglichkeiten.
Wohnungstyp: Etagenwohnung
Etage: 3
Etagenanzahl: 4
Provisionspflichtig: ja
Provision: 3,57% vom Kaufpreis inklusive MwSt.
Anzahl Schlafzimmer: 1
Anzahl Badezimmer: 1
Balkon: 1
Gäste-WC: ja
Keller: ja
Anzahl der Parkflächen: 1 x Tiefgarage
Letzte Modernisierung/ Sanierung: 2024
Qualität der Ausstattung: einfach
Baujahr: 1981
Hausgeld: 232 €
Bezugsfrei ab: 01.01.2026
Bodenbelag: Fliesen, Parkett
Zustand: sanierungsbedürftig
Energieverb. Warmwasser enthalten: ja
Heizung: Zentralheizung
Befeuerungsart: Gas
Energieausweistyp: Verbrauchsausweis - gültig vom 28.08.2018 bis 27.08.2028
Energieeffizienz-Klasse: C
Baujahr laut Energieausweis: 1981
Der Erwerber zahlt an Immobilienservice Uwe Zimmermann für den Nachweis und / oder die Vermittlung aus dem tatsächlichen Kaufpreis eine Provision in Höhe von 3,57% inklusive der gesetzlichen Mehrwertsteuer, z.Zt. 19%. Bei Abschluss des notariellen Kaufvertrages ist die Maklerprovision verdient und zur Zahlung sofort fällig.
Alle Angaben sind ohne Gewähr und basieren ausschließlich auf Informationen, welche uns vom Eigentümer zur Verfügung gestellt wurden. Wir übernehmen keine Gewähr /Haftung, für deren Richtigkeit, Vollständigkeit und Aktualität dieser Angaben. Zwischenverkauf vorbehalten. In diesem Zusammenhang verweisen wir auf unsere allgemeinen Geschäftsbedingungen hin. Durch weitere Inanspruchnahme unserer Leistungen erklären Sie die Kenntnis und Ihr Einverständnis.
Wir weisen auf unsere Allgemeinen Geschäftsbedingungen hin. Durch weitere Inanspruchnahme unserer Leistungen erklären Sie die Kenntnis und Ihr Einverständnis.
Das könnte Ihnen auch gefallen


















































